【閑静な住環境、冨塚の中古マンションのご紹介です】
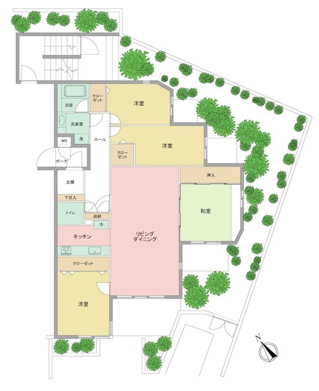
■約17.5帖の広々としたリビング!
■スーパーやコンビニも徒歩10分圏内!買い物にも困りません!
■角住戸で開放感を感じられます♪
ぜひ一度ご覧ください。お問い合わせお待ちしております!!
| 建物名 | アートフォルム富塚 | 物件種別 | マンション | ||
|---|---|---|---|---|---|
| 物件所在地 | 静岡県浜松市中央区富塚町4710-6 | 交通機関 | 【バス】医療センター(静岡県) バス停徒歩5分 | ||
| 通学区(小学校) | 浜松市立広沢小学校 1164m | 通学区(中学校) | 浜松市立蜆塚中学校 705m | ||
| 土地面積 | 747.38㎡(実測) | 面積(専有・建物) | 103.31㎡(登記簿) | 建ぺい率 | |
| 土地面積(坪) | 約226.08坪 | 面積(坪) | 約31.25坪 | 容積率 | |
| 間取り | 4LDK | 間取り詳細 | |||
| 建物構造 | 鉄筋コンクリート | 建物構造備考 | |||
| 特徴等 | |||||
| 都市計画 | 用途地域 | 第一種中高層住居専用地域 | 地目 | ||
| 管理 | 管理人形態:巡回 管理形態:全部委託 |
管理費 | 21,000円/月 | ||
| 修繕積立金 | 19,700円/月 | ||||
| 建物階数 | 地上5階建 地下1階建 | 土地現況 | |||
| 所在階 | 1階 | 窓の向き | 南 | ||
| 法令上の制限 | |||||
| 私道負担面積 | セットバック | 接道状況 | |||
| 駐車場 | 有(敷地内) 月額:6,000円 | 駐輪場 | |||
| バイク置き場 | |||||
| 地下・駐車場面積 | 総戸数 | 12戸 | 総区画数 | ||
| 現況 | 空き | 取引態様 | 媒介(仲介) | 引渡時期 | 即時 |
| 借地権 | 敷地の権利形態 | 専有面積割合による所有権の共有 | 地勢 | ||
| 近隣施設 | ドラッグストア:杏林堂薬局 浜松医療センター前 265m コンビ二:ファミリーマート 浜松医療センター店 424m スーパー:遠鉄ストア富塚店 746m 郵便局:浜松蜆塚郵便局 577m 警察署・交番:浜松中央警察署富塚町交番 1071m 総合病院:浜松医療センター 344m 内科:北川内科医院 534m |
||||
| 部屋外設備 | |||||
| 入居条件 | 施設費用 | その他費用 | 専用庭使用料:1,800円/月 | ||
| 建築確認番号 | 開発許可番号 | 国土法による許可 又は事前届出 | 不要 | ||
| 自社管理番号 | S-65-0000005630 | 物件管理コード | 2117658408900000035417 | 免許番号 | 静岡県知事(16)第1059号 |
| 備考 | |||||
| 情報更新日 | 2026年1月27日 | 次回更新予定日 | 2026年2月26日 | ||
※ページ内に記載の距離はおおよその目安です。
※(税込)表示がある価格には法定の消費税を含んでいます。
※(公社)静岡県宅地建物取引業協会 東海不動産公正取引協議会加盟
※建築条件付土地の場合は、すべて土地売買契約締結後3ヶ月以内に当社と建築請負契約を結んでいただくことを停止条件として販売します。3ヶ月以内に請負契約が成立しなかった場合は、土地の売買契約は白紙で解除し、申込金・預かり金・その他お預かりした金銭はすみやかにご返却します。
※図面等の掲載情報は、現況と異なる場合がありますがその場合は現況を優先して販売いたします。
※当ホームページではできるだけ最新情報の掲載・更新に努めておりますが、万一ご売却済みの場合はご了承ください。
遠州鉄道株式会社 遠鉄の不動産 高台店
053-437-1976




















































価格1690万円
(税込)
| 間取り: | 4LDK |
|---|---|
| 所在地: | 静岡県浜松市中央区富塚町4710-6 |
| 交通: | 【バス】医療センター(静岡県) バス停徒歩5分 |
| 築年月: | 1997年6月 |
【閑静な住環境、冨塚の中古マンションのご紹介です】
■約17.5帖の広々としたリビング!
■スーパーやコンビニも徒歩10分圏内!買い物にも困りません!
■角住戸で開放感を感じられます♪
ぜひ一度ご覧ください。お問い合わせお待ちしております!!
| 建物名 | アートフォルム富塚 |
|---|---|
| 物件種別 | マンション |
| 物件所在地 | 静岡県浜松市中央区富塚町4710-6 |
| 交通機関 | 【バス】医療センター(静岡県) バス停徒歩5分 |
| 通学区(小学校) | 浜松市立広沢小学校 1164m |
| 通学区(中学校) | 浜松市立蜆塚中学校 705m |
| 土地面積 | 747.38㎡(実測) |
| 土地面積(坪) | 約226.08坪 |
| 面積(専有・建物) | 103.31㎡(登記簿) |
| 面積(坪) | 約31.25坪 |
| 建ぺい率 | |
| 容積率 | |
| 間取り | 4LDK |
| 間取り詳細 | |
| 建物構造 | 鉄筋コンクリート |
| 建物構造備考 | |
| 特徴等 | |
| 都市計画 | |
| 用途地域 | 第一種中高層住居専用地域 |
| 地目 | |
| 管理費 | 21,000円/月 |
| 修繕積立金 | 19,700円/月 |
| 窓の向き | 南 |
| 建物階数 | 地上5階建 地下1階建 |
| 土地現況 | |
| 法令上の制限 | |
| 私道負担面積 | |
| セットバック | |
| 接道状況 | |
| 駐車場 | 有(敷地内) 月額:6,000円 |
| 駐輪場 | |
| バイク置き場 | |
| 地下・駐車場面積 | |
| 総戸数 | 12戸 |
| 総区画数 |
遠州鉄道株式会社 遠鉄の不動産 高台店
053-437-1976
| 現況 | 空き |
|---|---|
| 取引態様 | 媒介(仲介) |
| 引渡時期 | 即時 |
| 借地権 | |
| 敷地の権利形態 | 専有面積割合による所有権の共有 |
| 地勢 | |
| 近隣施設 | ドラッグストア:杏林堂薬局 浜松医療センター前 265m コンビ二:ファミリーマート 浜松医療センター店 424m スーパー:遠鉄ストア富塚店 746m 郵便局:浜松蜆塚郵便局 577m 警察署・交番:浜松中央警察署富塚町交番 1071m 総合病院:浜松医療センター 344m 内科:北川内科医院 534m |
| 部屋外設備 | |
| 入居条件 | |
| 施設費用 | |
| その他費用 | 専用庭使用料:1,800円/月 |
| 建築確認番号 | |
| 開発許可番号 | |
| 国土法による許可 又は事前届出 | 不要 |
| 自社管理番号 | S-65-0000005630 |
| 物件管理コード | 2117658408900000035417 |
| 免許番号 | 静岡県知事(16)第1059号 |
| 備考 | |
| 情報更新日 | 2026年1月27日 |
| 次回更新予定日 | 2026年2月26日 |
※ページ内に記載の距離はおおよその目安です。
※(税込)表示がある価格には法定の消費税を含んでいます。
※(公社)静岡県宅地建物取引業協会 東海不動産公正取引協議会加盟
※建築条件付土地の場合は、すべて土地売買契約締結後3ヶ月以内に当社と建築請負契約を結んでいただくことを停止条件として販売します。3ヶ月以内に請負契約が成立しなかった場合は、土地の売買契約は白紙で解除し、申込金・預かり金・その他お預かりした金銭はすみやかにご返却します。
※図面等の掲載情報は、現況と異なる場合がありますがその場合は現況を優先して販売いたします。
※当ホームページではできるだけ最新情報の掲載・更新に努めておりますが、万一ご売却済みの場合はご了承ください。
遠州鉄道株式会社 遠鉄の不動産 高台店
053-437-1976