ガス衣類乾燥機「乾太くん」付/広々お庭/JR掛川駅へ車約2分。
第一小学校へ徒歩約17分。整備された住宅街で、家族の通勤通学に便利な立地。
スーパーは徒歩3分。コンビニ、薬局車2分圏内。周囲にホームセンターやディスカウントストアも揃い、通勤・買い物便利な住環境です。
・ガス衣類乾燥機付!お洗濯が素早くふんわり乾きます。梅雨の時期も大活躍です。
・主寝室には約1.8帖のウォークインクローゼット付
・ダイニングにはカウンター付。お子様のスタディコーナーや家事コーナーにも♪
| 建物名 | 掛川市緑ヶ丘1丁目 | 物件種別 | 戸建 | ||
|---|---|---|---|---|---|
| 物件所在地 | 静岡県掛川市緑ケ丘1丁目26-10付近 | 交通機関 | 東海道本線(東海) 掛川駅 車2分(0.9km) | ||
| 通学区(小学校) | 掛川市立第一小学校 1300m | 通学区(中学校) | 掛川市立東中学校 1782m | ||
| 土地面積 | 210.25㎡(実測) | 面積(専有・建物) | 99.78㎡ | 建ぺい率 | 60% |
| 土地面積(坪) | 約63.6坪 | 面積(坪) | 約30.18坪 | 容積率 | 150% |
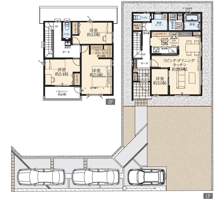
| 間取り | 4LDK | 間取り詳細 | 1階:LDK(16畳) 洋室(3畳) 2階:洋室(7畳) 洋室(5.4畳) 洋室(5畳) | ||
| 建物構造 | 木造 | 建物構造備考 | |||
| 特徴等 | 免震・耐震構造:耐震構造 |
||||
| 都市計画 | 非線引き区域 | 用途地域 | 第二種中高層住居専用地域 | 地目 | 宅地 |
| 窓の向き | 建物階数 | 地上2階建 | 土地現況 | ||
| 法令上の制限 | 景観法 都市再生特別措置法 | ||||
| 私道負担面積 | 無し | セットバック | 接道状況 | 西6m公道 | |
| 駐車場 | 付 | 駐輪場 | |||
| バイク置き場 | |||||
| 地下・駐車場面積 | 総戸数 | 総区画数 | |||
| 現況 | 空き | 取引態様 | 売主 | 引渡時期 | 即時 |
| 借地権 | 敷地の権利形態 | 所有権 | 地勢 | 平坦 | |
| 近隣施設 | スーパー:ユーコープ緑ヶ丘店 180m コンビ二:セブンイレブン 掛川葛川店 705m ドラッグストア:ココカラファイン 掛川店 969m 幼稚園:くるみ幼稚園 1800m |
||||
| 部屋外設備 | |||||
| 入居条件 | 施設費用 | その他費用 | |||
| 建築確認番号 | 確認サービス第 KS124-0410-53833 号 | 開発許可番号 | 国土法による許可 又は事前届出 | ||
| 自社管理番号 | S-66-0000002246 | 物件管理コード | 2117658408900000035259 | 免許番号 | 静岡県知事(16)第1059号 |
| 備考 | |||||
| 情報更新日 | 2025年11月27日 | 次回更新予定日 | 2025年12月27日 | ||
※ページ内に記載の距離はおおよその目安です。
※(税込)表示がある価格には法定の消費税を含んでいます。
※(公社)静岡県宅地建物取引業協会 東海不動産公正取引協議会加盟
※建築条件付土地の場合は、すべて土地売買契約締結後3ヶ月以内に当社と建築請負契約を結んでいただくことを停止条件として販売します。3ヶ月以内に請負契約が成立しなかった場合は、土地の売買契約は白紙で解除し、申込金・預かり金・その他お預かりした金銭はすみやかにご返却します。
※図面等の掲載情報は、現況と異なる場合がありますがその場合は現況を優先して販売いたします。
※当ホームページではできるだけ最新情報の掲載・更新に努めておりますが、万一ご売却済みの場合はご了承ください。
遠州鉄道株式会社 遠鉄の不動産 掛川店・掛川住宅プラザ
0537-23-5103



































価格3490万円
(税込)
| 間取り: | 4LDK |
|---|---|
| 所在地: | 静岡県掛川市緑ケ丘1丁目26-10付近 |
| 交通: | 東海道本線(東海) 掛川駅 車2分(0.9km) |
| 築年月: | 2024年9月 |
ガス衣類乾燥機「乾太くん」付/広々お庭/JR掛川駅へ車約2分。
第一小学校へ徒歩約17分。整備された住宅街で、家族の通勤通学に便利な立地。
スーパーは徒歩3分。コンビニ、薬局車2分圏内。周囲にホームセンターやディスカウントストアも揃い、通勤・買い物便利な住環境です。
・ガス衣類乾燥機付!お洗濯が素早くふんわり乾きます。梅雨の時期も大活躍です。
・主寝室には約1.8帖のウォークインクローゼット付
・ダイニングにはカウンター付。お子様のスタディコーナーや家事コーナーにも♪
| 建物名 | 掛川市緑ヶ丘1丁目 |
|---|---|
| 物件種別 | 戸建 |
| 物件所在地 | 静岡県掛川市緑ケ丘1丁目26-10付近 |
| 交通機関 | 東海道本線(東海) 掛川駅 車2分(0.9km) |
| 通学区(小学校) | 掛川市立第一小学校 1300m |
| 通学区(中学校) | 掛川市立東中学校 1782m |
| 土地面積 | 210.25㎡(実測) |
| 土地面積(坪) | 約63.6坪 |
| 面積(専有・建物) | 99.78㎡ |
| 面積(坪) | 約30.18坪 |
| 建ぺい率 | 60% |
| 容積率 | 150% |
| 間取り | 4LDK |
| 間取り詳細 | 1階:LDK(16畳) 洋室(3畳) 2階:洋室(7畳) 洋室(5.4畳) 洋室(5畳) |
| 建物構造 | 木造 |
| 建物構造備考 | |
| 特徴等 | 免震・耐震構造:耐震構造 |
| 都市計画 | 非線引き区域 |
| 用途地域 | 第二種中高層住居専用地域 |
| 地目 | 宅地 |
| 窓の向き | |
| 建物階数 | 地上2階建 |
| 土地現況 | |
| 法令上の制限 | 景観法 都市再生特別措置法 |
| 私道負担面積 | 無し |
| セットバック | |
| 接道状況 | 西6m公道 |
| 駐車場 | 付 |
| 駐輪場 | |
| バイク置き場 | |
| 地下・駐車場面積 | |
| 総戸数 | |
| 総区画数 |
遠州鉄道株式会社 遠鉄の不動産 掛川店・掛川住宅プラザ
0537-23-5103
| 現況 | 空き |
|---|---|
| 取引態様 | 売主 |
| 引渡時期 | 即時 |
| 借地権 | |
| 敷地の権利形態 | 所有権 |
| 地勢 | 平坦 |
| 近隣施設 | スーパー:ユーコープ緑ヶ丘店 180m コンビ二:セブンイレブン 掛川葛川店 705m ドラッグストア:ココカラファイン 掛川店 969m 幼稚園:くるみ幼稚園 1800m |
| 部屋外設備 | |
| 入居条件 | |
| 施設費用 | |
| その他費用 | |
| 建築確認番号 | 確認サービス第 KS124-0410-53833 号 |
| 開発許可番号 | |
| 国土法による許可 又は事前届出 | |
| 自社管理番号 | S-66-0000002246 |
| 物件管理コード | 2117658408900000035259 |
| 免許番号 | 静岡県知事(16)第1059号 |
| 備考 | |
| 情報更新日 | 2025年11月27日 |
| 次回更新予定日 | 2025年12月27日 |
※ページ内に記載の距離はおおよその目安です。
※(税込)表示がある価格には法定の消費税を含んでいます。
※(公社)静岡県宅地建物取引業協会 東海不動産公正取引協議会加盟
※建築条件付土地の場合は、すべて土地売買契約締結後3ヶ月以内に当社と建築請負契約を結んでいただくことを停止条件として販売します。3ヶ月以内に請負契約が成立しなかった場合は、土地の売買契約は白紙で解除し、申込金・預かり金・その他お預かりした金銭はすみやかにご返却します。
※図面等の掲載情報は、現況と異なる場合がありますがその場合は現況を優先して販売いたします。
※当ホームページではできるだけ最新情報の掲載・更新に努めておりますが、万一ご売却済みの場合はご了承ください。
遠州鉄道株式会社 遠鉄の不動産 掛川店・掛川住宅プラザ
0537-23-5103