落ち着いた住宅地に位置する、静かな住環境が魅力の物件です。
南面道路につき日当たり良好。敷地も271㎡とゆとりがあり、
開放感のある住まいづくりが可能です。
造成済みでのお引渡しのため、余分な造成費用がかからず、
その分、建物や設備にご予算をかけたい方にもおすすめ。
周囲は住宅が中心で、落ち着いて暮らしたい方に適した立地です。
| 物件所在地 | 静岡県磐田市蛭池229-6 | 物件種別 | 土地 | ||
|---|---|---|---|---|---|
| 交通機関 | 東海道本線(東海) 御厨(静岡)駅 徒歩35分 | 総区画数 | |||
| 通学区(小学校) | 磐田市立福田小学校 2253m | 通学区(中学校) | 磐田市立福田中学校 4121m | ||
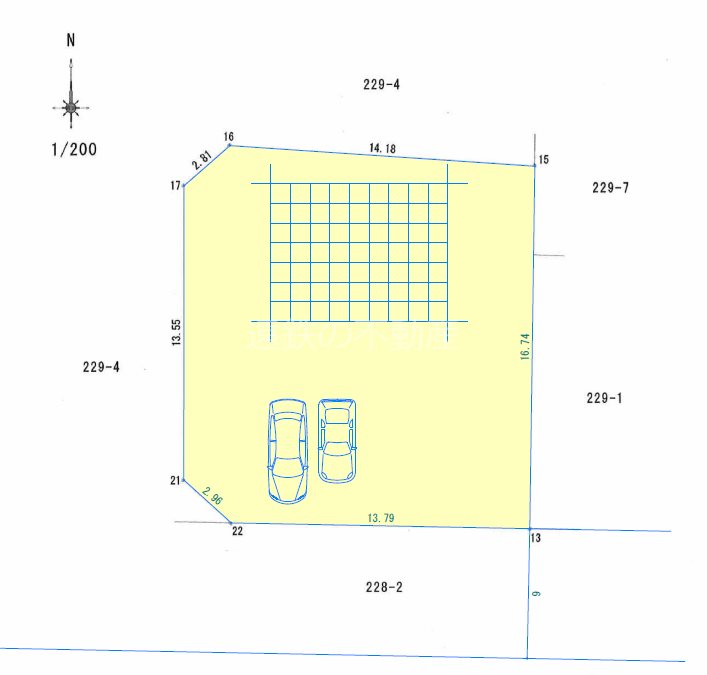
| 土地面積 | 271.63㎡(公簿) | 建ぺい率 | 50% | 都市計画 | 市街化調整区域 |
| 土地面積(坪) | 約82.16坪 | 容積率 | 80% | 用途地域 | 無指定 |
| 土地現況 | 造成済み | 建築条件の有無 | 地目 | 宅地 現況地目:宅地 | |
| 特徴等 | 最適用途:住宅用地 |
||||
| 法令上の制限 | 景観法 都市再生特別措置法 | ||||
| 私道負担面積 | 無し | セットバック | 接道状況 | 南6m私道 間口14m | |
| 現況 | 取引態様 | 媒介(仲介) | 引渡時期 | 即時 | |
| 借地権 | 敷地の権利形態 | 所有権 | 地勢 | 平坦 | |
| 近隣施設 | コンビ二:ファミリーマート 磐田東新町店 1113m 役所:磐田市福田支所 1890m 郵便局:福田郵便局 2464m 銀行:JA遠州中央福田支店 1646m 銀行:浜松いわた信用金庫福田支店 2079m |
||||
| 入居条件 | 施設費用 | その他費用 | |||
| 建築確認番号 | 開発許可番号 | 国土法による許可 又は事前届出 | 不要 | ||
| 自社管理番号 | S-62-0000003091 | 物件管理コード | 2117658408900000034995 | 免許番号 | 静岡県知事(16)第1059号 |
| 備考 | |||||
| 情報更新日 | 2026年1月30日 | 次回更新予定日 | 2026年3月1日 | ||
※ページ内に記載の距離はおおよその目安です。
※(税込)表示がある価格には法定の消費税を含んでいます。
※(公社)静岡県宅地建物取引業協会 東海不動産公正取引協議会加盟
※建築条件付土地の場合は、すべて土地売買契約締結後3ヶ月以内に当社と建築請負契約を結んでいただくことを停止条件として販売します。3ヶ月以内に請負契約が成立しなかった場合は、土地の売買契約は白紙で解除し、申込金・預かり金・その他お預かりした金銭はすみやかにご返却します。
※図面等の掲載情報は、現況と異なる場合がありますがその場合は現況を優先して販売いたします。
※当ホームページではできるだけ最新情報の掲載・更新に努めておりますが、万一ご売却済みの場合はご了承ください。
遠州鉄道株式会社 遠鉄の不動産 磐田店
0538-31-7070





















価格780万円
| 土地面積: | 271.63㎡(公簿)(約82.16坪) |
|---|---|
| 所在地: | 静岡県磐田市蛭池229-6 |
| 交通: | 東海道本線(東海) 御厨(静岡)駅 徒歩35分 |
落ち着いた住宅地に位置する、静かな住環境が魅力の物件です。
南面道路につき日当たり良好。敷地も271㎡とゆとりがあり、
開放感のある住まいづくりが可能です。
造成済みでのお引渡しのため、余分な造成費用がかからず、
その分、建物や設備にご予算をかけたい方にもおすすめ。
周囲は住宅が中心で、落ち着いて暮らしたい方に適した立地です。
| 物件所在地 | 静岡県磐田市蛭池229-6 |
|---|---|
| 物件種別 | 土地 |
| 交通機関 | 東海道本線(東海) 御厨(静岡)駅 徒歩35分 |
| 総区画数 | |
| 通学区(小学校) | 磐田市立福田小学校 2253m |
| 通学区(中学校) | 磐田市立福田中学校 4121m |
| 土地面積 | 271.63㎡(公簿) |
| 土地面積(坪) | 約82.16坪 |
| 建ぺい率 | 50% |
| 容積率 | 80% |
| 特徴等 | 最適用途:住宅用地 |
| 都市計画 | 市街化調整区域 |
| 用途地域 | 無指定 |
| 地目 | 宅地 現況地目:宅地 |
| 土地現況 | 造成済み |
| 建築条件の有無 | |
| 法令上の制限 | 景観法 都市再生特別措置法 |
遠州鉄道株式会社 遠鉄の不動産 磐田店
0538-31-7070
| 私道負担面積 | 無し |
|---|---|
| セットバック | |
| 接道状況 | 南6m私道 間口14m |
| 現況 | |
| 取引態様 | 媒介(仲介) |
| 引渡時期 | 即時 |
| 借地権 | |
| 敷地の権利形態 | 所有権 |
| 地勢 | 平坦 |
| 近隣施設 | コンビ二:ファミリーマート 磐田東新町店 1113m 役所:磐田市福田支所 1890m 郵便局:福田郵便局 2464m 銀行:JA遠州中央福田支店 1646m 銀行:浜松いわた信用金庫福田支店 2079m |
| 入居条件 | |
| 施設費用 | |
| その他費用 | |
| 建築確認番号 | |
| 開発許可番号 | |
| 国土法による許可 又は事前届出 | 不要 |
| 自社管理番号 | S-62-0000003091 |
| 物件管理コード | 2117658408900000034995 |
| 免許番号 | 静岡県知事(16)第1059号 |
| 備考 | |
| 情報更新日 | 2026年1月30日 |
| 次回更新予定日 | 2026年3月1日 |
※ページ内に記載の距離はおおよその目安です。
※(税込)表示がある価格には法定の消費税を含んでいます。
※(公社)静岡県宅地建物取引業協会 東海不動産公正取引協議会加盟
※建築条件付土地の場合は、すべて土地売買契約締結後3ヶ月以内に当社と建築請負契約を結んでいただくことを停止条件として販売します。3ヶ月以内に請負契約が成立しなかった場合は、土地の売買契約は白紙で解除し、申込金・預かり金・その他お預かりした金銭はすみやかにご返却します。
※図面等の掲載情報は、現況と異なる場合がありますがその場合は現況を優先して販売いたします。
※当ホームページではできるだけ最新情報の掲載・更新に努めておりますが、万一ご売却済みの場合はご了承ください。
遠州鉄道株式会社 遠鉄の不動産 磐田店
0538-31-7070