■日当たり・眺望の良い高台の立地
三組町の丘の上に位置し、南側が開けているため日当たりが良く、心地よい眺望も楽しめます。
落ち着いた住環境をお探しの方におすすめです。
■建築条件なし
お好きなハウスメーカーや工務店で建築可能です。
ライフスタイルに合わせた自由な住まいづくりができます。
■利便性と子育て環境のバランスがとれた周辺環境
杏林堂高町店まで徒歩1分。周辺には学校も多く、日々の生活に便利で、子育てもしやすい立地です。
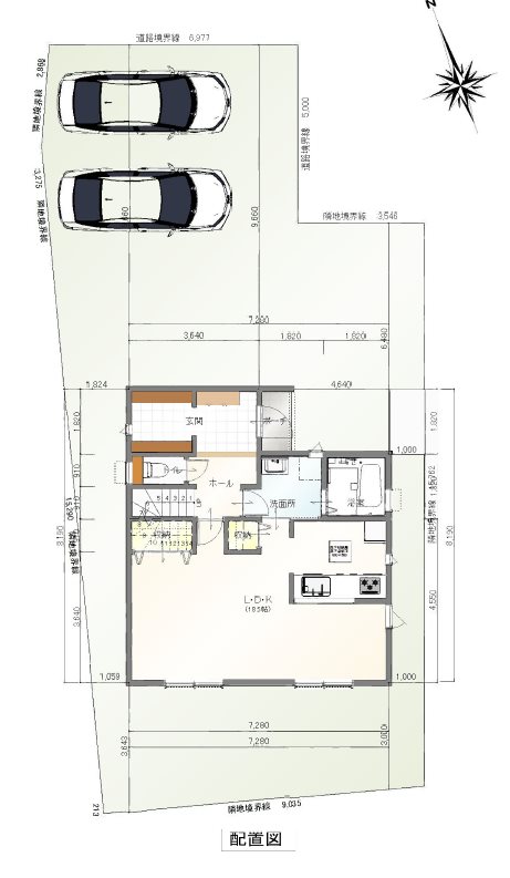
| 物件所在地 | 静岡県浜松市中央区三組町175-3 | 物件種別 | 土地 | ||
|---|---|---|---|---|---|
| 交通機関 | 【バス】高町(静岡県) バス停徒歩3分 | 総区画数 | 1区画 | ||
| 通学区(小学校) | 浜松市立西小学校 405m | 通学区(中学校) | 浜松市立西部中学校 1157m | ||
| 土地面積 | 193.61㎡(実測) | 建ぺい率 | 60% | 都市計画 | 市街化区域 |
| 土地面積(坪) | 約58.56坪 | 容積率 | 200% | 用途地域 | 第二種住居地域 |
| 土地現況 | 造成済み | 建築条件の有無 | 無し | 地目 | 宅地 |
| 特徴等 | 最適用途:住宅用地 |
||||
| 法令上の制限 | 宅地造成等規制法 | ||||
| 私道負担面積 | セットバック | 接道状況 | 北5m公道 間口8.5m | ||
| 現況 | 取引態様 | 一般媒介 | 引渡時期 | 相談 | |
| 借地権 | 敷地の権利形態 | 所有権 | 地勢 | ひな段 | |
| 近隣施設 | ショッピング施設:遠鉄百貨店 403m ショッピング施設:ザザシティ浜松 767m スーパー:遠鉄ストアフードワン鴨江店 425m コンビ二:セブンイレブン 浜松高町店 335m 銀行:三菱東京UFJ銀行浜松支店 340m 銀行:浜松いわた信用金庫伝馬町支店 671m 郵便局:浜松連尺郵便局 403m |
||||
| 入居条件 | 施設費用 | その他費用 | |||
| 建築確認番号 | 開発許可番号 | 国土法による許可 又は事前届出 | 届出中 | ||
| 自社管理番号 | S-63-0000006422 | 物件管理コード | 2117658408900000033024 | 免許番号 | 静岡県知事(16)第1059号 |
| 備考 | ■日当たり・眺望の良い高台の立地 三組町の丘の上に位置し、南側が開けているため日当たりが良く、心地よい眺望も楽しめます。 落ち着いた住環境をお探しの方におすすめです。 ■建築条件なし お好きなハウスメーカーや工務店で建築可能です。 ライフスタイルに合わせた自由な住まいづくりができます。 ■利便性と子育て環境のバランスがとれた周辺環境 杏林堂高町店まで徒歩1分。周辺には学校も多く、日々の生活に便利で、子育てもしやすい立地です。 |
||||
| 情報更新日 | 2026年1月26日 | 次回更新予定日 | 2026年2月25日 | ||
※ページ内に記載の距離はおおよその目安です。
※(税込)表示がある価格には法定の消費税を含んでいます。
※(公社)静岡県宅地建物取引業協会 東海不動産公正取引協議会加盟
※建築条件付土地の場合は、すべて土地売買契約締結後3ヶ月以内に当社と建築請負契約を結んでいただくことを停止条件として販売します。3ヶ月以内に請負契約が成立しなかった場合は、土地の売買契約は白紙で解除し、申込金・預かり金・その他お預かりした金銭はすみやかにご返却します。
※図面等の掲載情報は、現況と異なる場合がありますがその場合は現況を優先して販売いたします。
※当ホームページではできるだけ最新情報の掲載・更新に努めておりますが、万一ご売却済みの場合はご了承ください。
遠州鉄道株式会社 遠鉄の不動産 浜松店
053-471-0202































価格2800万円
| 土地面積: | 193.61㎡(実測)(約58.56坪) |
|---|---|
| 所在地: | 静岡県浜松市中央区三組町175-3 |
| 交通: | 【バス】高町(静岡県) バス停徒歩3分 |
■日当たり・眺望の良い高台の立地
三組町の丘の上に位置し、南側が開けているため日当たりが良く、心地よい眺望も楽しめます。
落ち着いた住環境をお探しの方におすすめです。
■建築条件なし
お好きなハウスメーカーや工務店で建築可能です。
ライフスタイルに合わせた自由な住まいづくりができます。
■利便性と子育て環境のバランスがとれた周辺環境
杏林堂高町店まで徒歩1分。周辺には学校も多く、日々の生活に便利で、子育てもしやすい立地です。
| 物件所在地 | 静岡県浜松市中央区三組町175-3 |
|---|---|
| 物件種別 | 土地 |
| 交通機関 | 【バス】高町(静岡県) バス停徒歩3分 |
| 総区画数 | 1区画 |
| 通学区(小学校) | 浜松市立西小学校 405m |
| 通学区(中学校) | 浜松市立西部中学校 1157m |
| 土地面積 | 193.61㎡(実測) |
| 土地面積(坪) | 約58.56坪 |
| 建ぺい率 | 60% |
| 容積率 | 200% |
| 特徴等 | 最適用途:住宅用地 |
| 都市計画 | 市街化区域 |
| 用途地域 | 第二種住居地域 |
| 地目 | 宅地 |
| 土地現況 | 造成済み |
| 建築条件の有無 | 無し |
| 法令上の制限 | 宅地造成等規制法 |
遠州鉄道株式会社 遠鉄の不動産 浜松店
053-471-0202
| 私道負担面積 | |
|---|---|
| セットバック | |
| 接道状況 | 北5m公道 間口8.5m |
| 現況 | |
| 取引態様 | 一般媒介 |
| 引渡時期 | 相談 |
| 借地権 | |
| 敷地の権利形態 | 所有権 |
| 地勢 | ひな段 |
| 近隣施設 | ショッピング施設:遠鉄百貨店 403m ショッピング施設:ザザシティ浜松 767m スーパー:遠鉄ストアフードワン鴨江店 425m コンビ二:セブンイレブン 浜松高町店 335m 銀行:三菱東京UFJ銀行浜松支店 340m 銀行:浜松いわた信用金庫伝馬町支店 671m 郵便局:浜松連尺郵便局 403m |
| 入居条件 | |
| 施設費用 | |
| その他費用 | |
| 建築確認番号 | |
| 開発許可番号 | |
| 国土法による許可 又は事前届出 | 届出中 |
| 自社管理番号 | S-63-0000006422 |
| 物件管理コード | 2117658408900000033024 |
| 免許番号 | 静岡県知事(16)第1059号 |
| 備考 | ■日当たり・眺望の良い高台の立地 三組町の丘の上に位置し、南側が開けているため日当たりが良く、心地よい眺望も楽しめます。 落ち着いた住環境をお探しの方におすすめです。 ■建築条件なし お好きなハウスメーカーや工務店で建築可能です。 ライフスタイルに合わせた自由な住まいづくりができます。 ■利便性と子育て環境のバランスがとれた周辺環境 杏林堂高町店まで徒歩1分。周辺には学校も多く、日々の生活に便利で、子育てもしやすい立地です。 |
| 情報更新日 | 2026年1月26日 |
| 次回更新予定日 | 2026年2月25日 |
※ページ内に記載の距離はおおよその目安です。
※(税込)表示がある価格には法定の消費税を含んでいます。
※(公社)静岡県宅地建物取引業協会 東海不動産公正取引協議会加盟
※建築条件付土地の場合は、すべて土地売買契約締結後3ヶ月以内に当社と建築請負契約を結んでいただくことを停止条件として販売します。3ヶ月以内に請負契約が成立しなかった場合は、土地の売買契約は白紙で解除し、申込金・預かり金・その他お預かりした金銭はすみやかにご返却します。
※図面等の掲載情報は、現況と異なる場合がありますがその場合は現況を優先して販売いたします。
※当ホームページではできるだけ最新情報の掲載・更新に努めておりますが、万一ご売却済みの場合はご了承ください。
遠州鉄道株式会社 遠鉄の不動産 浜松店
053-471-0202