新築平屋建て!~2025年4月完成予定~
現在好評な平屋で快適な生活を送ることができます!
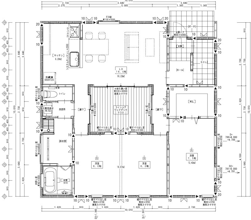
建物中央にウッドデッキがあり、開放感があります!
ご内覧希望のお客様は、物件完成するまでは
同仕様物件にてイメージを膨らませていただきご検討いただく
ことが可能です!お気軽にお問い合わせください!
| 建物名 | 浜松市中央区小沢渡町 | 物件種別 | 戸建 | ||
|---|---|---|---|---|---|
| 物件所在地 | 静岡県浜松市中央区小沢渡町503-1 | 交通機関 | 【バス】小沢渡 バス停徒歩2分 | ||
| 通学区(小学校) | 通学区(中学校) | ||||
| 土地面積 | 223.29㎡(公簿) | 面積(専有・建物) | 87.78㎡ | 建ぺい率 | 60% |
| 土地面積(坪) | 約67.54坪 | 面積(坪) | 約26.55坪 | 容積率 | 200% |
| 間取り | 3LDK | 間取り詳細 | 1階:LD(16畳) K(3畳) 洋室(7.5畳) 洋室(6畳) 洋室(6畳) | ||
| 建物構造 | 木造 | 建物構造備考 | |||
| 特徴等 | |||||
| 都市計画 | 市街化調整区域 | 用途地域 | 無指定 | 地目 | 宅地 現況地目:宅地 |
| 窓の向き | 北 | 建物階数 | 地上1階建 地下0階建 | 土地現況 | |
| 法令上の制限 | |||||
| 私道負担面積 | 無し | セットバック | 接道状況 | 北4.31m公道 間口11.56m / 東2.6m公道 間口18.13m 北東角地 | |
| 駐車場 | 有(敷地内) 月額:0円 | 駐輪場 | |||
| バイク置き場 | |||||
| 地下・駐車場面積 | 総戸数 | 総区画数 | |||
| 現況 | 新築 | 取引態様 | 一般媒介 | 引渡時期 | 即時 |
| 借地権 | 敷地の権利形態 | 所有権 | 地勢 | 平坦 | |
| 近隣施設 | コンビ二:ファミリーマート 浜松小沢渡店 295m スーパー:クックマート 可美店 1148m 図書館:浜松市立可新図書館 693m 内科:滝浪ハートクリニック 837m 銀行:浜松いわた信用金庫可美支店 841m 公園:可美公園 1134m |
||||
| 部屋外設備 | |||||
| 入居条件 | 施設費用 | その他費用 | |||
| 建築確認番号 | 第2024確認建築静建住ま05734号 | 開発許可番号 | 国土法による許可 又は事前届出 | 不要 | |
| 自社管理番号 | S-63-0000006025 | 物件管理コード | 2117658408900000031418 | 免許番号 | 静岡県知事(16)第1059号 |
| 備考 | ・現況渡し | ||||
| 情報更新日 | 2025年11月26日 | 次回更新予定日 | 2025年12月26日 | ||
※ページ内に記載の距離はおおよその目安です。
※(税込)表示がある価格には法定の消費税を含んでいます。
※(公社)静岡県宅地建物取引業協会 東海不動産公正取引協議会加盟
※建築条件付土地の場合は、すべて土地売買契約締結後3ヶ月以内に当社と建築請負契約を結んでいただくことを停止条件として販売します。3ヶ月以内に請負契約が成立しなかった場合は、土地の売買契約は白紙で解除し、申込金・預かり金・その他お預かりした金銭はすみやかにご返却します。
※図面等の掲載情報は、現況と異なる場合がありますがその場合は現況を優先して販売いたします。
※当ホームページではできるだけ最新情報の掲載・更新に努めておりますが、万一ご売却済みの場合はご了承ください。
遠州鉄道株式会社 遠鉄の不動産 浜松店
053-471-0202









































価格2750万円
(税込)
| 間取り: | 3LDK |
|---|---|
| 所在地: | 静岡県浜松市中央区小沢渡町503-1 |
| 交通: | 【バス】小沢渡 バス停徒歩2分 |
| 築年月: | 2025年4月(新築) |
新築平屋建て!~2025年4月完成予定~
現在好評な平屋で快適な生活を送ることができます!
建物中央にウッドデッキがあり、開放感があります!
ご内覧希望のお客様は、物件完成するまでは
同仕様物件にてイメージを膨らませていただきご検討いただく
ことが可能です!お気軽にお問い合わせください!
| 建物名 | 浜松市中央区小沢渡町 |
|---|---|
| 物件種別 | 戸建 |
| 物件所在地 | 静岡県浜松市中央区小沢渡町503-1 |
| 交通機関 | 【バス】小沢渡 バス停徒歩2分 |
| 通学区(小学校) | |
| 通学区(中学校) | |
| 土地面積 | 223.29㎡(公簿) |
| 土地面積(坪) | 約67.54坪 |
| 面積(専有・建物) | 87.78㎡ |
| 面積(坪) | 約26.55坪 |
| 建ぺい率 | 60% |
| 容積率 | 200% |
| 間取り | 3LDK |
| 間取り詳細 | 1階:LD(16畳) K(3畳) 洋室(7.5畳) 洋室(6畳) 洋室(6畳) |
| 建物構造 | 木造 |
| 建物構造備考 | |
| 特徴等 | |
| 都市計画 | 市街化調整区域 |
| 用途地域 | 無指定 |
| 地目 | 宅地 現況地目:宅地 |
| 窓の向き | 北 |
| 建物階数 | 地上1階建 地下0階建 |
| 土地現況 | |
| 法令上の制限 | |
| 私道負担面積 | 無し |
| セットバック | |
| 接道状況 | 北4.31m公道 間口11.56m / 東2.6m公道 間口18.13m 北東角地 |
| 駐車場 | 有(敷地内) 月額:0円 |
| 駐輪場 | |
| バイク置き場 | |
| 地下・駐車場面積 | |
| 総戸数 | |
| 総区画数 |
遠州鉄道株式会社 遠鉄の不動産 浜松店
053-471-0202
| 現況 | 新築 |
|---|---|
| 取引態様 | 一般媒介 |
| 引渡時期 | 即時 |
| 借地権 | |
| 敷地の権利形態 | 所有権 |
| 地勢 | 平坦 |
| 近隣施設 | コンビ二:ファミリーマート 浜松小沢渡店 295m スーパー:クックマート 可美店 1148m 図書館:浜松市立可新図書館 693m 内科:滝浪ハートクリニック 837m 銀行:浜松いわた信用金庫可美支店 841m 公園:可美公園 1134m |
| 部屋外設備 | |
| 入居条件 | |
| 施設費用 | |
| その他費用 | |
| 建築確認番号 | 第2024確認建築静建住ま05734号 |
| 開発許可番号 | |
| 国土法による許可 又は事前届出 | 不要 |
| 自社管理番号 | S-63-0000006025 |
| 物件管理コード | 2117658408900000031418 |
| 免許番号 | 静岡県知事(16)第1059号 |
| 備考 | ・現況渡し |
| 情報更新日 | 2025年11月26日 |
| 次回更新予定日 | 2025年12月26日 |
※ページ内に記載の距離はおおよその目安です。
※(税込)表示がある価格には法定の消費税を含んでいます。
※(公社)静岡県宅地建物取引業協会 東海不動産公正取引協議会加盟
※建築条件付土地の場合は、すべて土地売買契約締結後3ヶ月以内に当社と建築請負契約を結んでいただくことを停止条件として販売します。3ヶ月以内に請負契約が成立しなかった場合は、土地の売買契約は白紙で解除し、申込金・預かり金・その他お預かりした金銭はすみやかにご返却します。
※図面等の掲載情報は、現況と異なる場合がありますがその場合は現況を優先して販売いたします。
※当ホームページではできるだけ最新情報の掲載・更新に努めておりますが、万一ご売却済みの場合はご了承ください。
遠州鉄道株式会社 遠鉄の不動産 浜松店
053-471-0202