\\長期優良住宅・省エネ性能ラベル取得・耐震等級3取得//
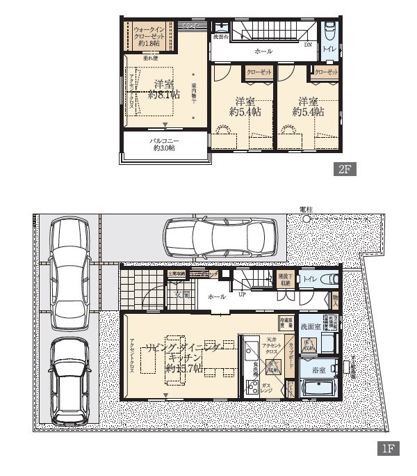
■主寝室には約1.8帖のウォークインクローゼットとカウンタースぺース付!
■ガス衣類乾燥機付!ガスの力でお洗濯ものが素早くふっくら乾きます
■ホール収納や階段下収納など便利な収納が各所にあります
■全居室南向き&2面採光で快適な住まい
■2階ホールにはセカンド洗面を設置。混みあう洗面も快適にご利用いただけます。
| 建物名 | 浜松市中央区高塚町 | 物件種別 | 戸建 | ||
|---|---|---|---|---|---|
| 物件所在地 | 静岡県浜松市中央区高塚町4827-9 | 交通機関 | 東海道本線(東海) 高塚駅 車2分(0.8km) 【バス】高塚西 バス停徒歩2分 |
||
| 通学区(小学校) | 浜松市立可美小学校 1800m | 通学区(中学校) | 浜松市立可美中学校 1321m | ||
| 土地面積 | 129.61㎡(実測) | 面積(専有・建物) | 92.74㎡ | 建ぺい率 | 60% |
| 土地面積(坪) | 約39.2坪 | 面積(坪) | 約28.05坪 | 容積率 | 200% |
| 間取り | 3LDK | 間取り詳細 | 1階:LDK(15.7畳) 2階:洋室(5.4畳) 洋室(5.4畳) 洋室(8.1畳) | ||
| 建物構造 | 木造 | 建物構造備考 | |||
| 特徴等 | 免震・耐震構造:耐震構造 |
||||
| 都市計画 | 市街化区域 | 用途地域 | 工業地域 | 地目 | 宅地 |
| 窓の向き | 南 | 建物階数 | 地上2階建 | 土地現況 | |
| 法令上の制限 | 景観法 都市再生特別措置法 | ||||
| 私道負担面積 | セットバック | 接道状況 | 北東4m私道 | ||
| 駐車場 | 付 | 駐輪場 | |||
| バイク置き場 | |||||
| 地下・駐車場面積 | 総戸数 | 総区画数 | |||
| 現況 | 空き | 取引態様 | 売主 | 引渡時期 | 相談 |
| 借地権 | 敷地の権利形態 | 所有権 | 地勢 | 平坦 | |
| 近隣施設 | スーパー:バロー 高塚店 140m ショッピング施設:イオンモール浜松志都呂 3500m コンビ二:ローソン 浜松篠原店 340m スーパー:遠鉄ストア篠原店 868m |
||||
| 部屋外設備 | バルコニー | ||||
| 入居条件 | 施設費用 | その他費用 | |||
| 建築確認番号 | 第 KS124-0410-53283 号 | 開発許可番号 | 国土法による許可 又は事前届出 | ||
| 自社管理番号 | S-63-0000006014 | 物件管理コード | 2117658408900000031352 | 免許番号 | 静岡県知事(16)第1059号 |
| 備考 | |||||
| 情報更新日 | 2025年11月26日 | 次回更新予定日 | 2025年12月26日 | ||
※ページ内に記載の距離はおおよその目安です。
※(税込)表示がある価格には法定の消費税を含んでいます。
※(公社)静岡県宅地建物取引業協会 東海不動産公正取引協議会加盟
※建築条件付土地の場合は、すべて土地売買契約締結後3ヶ月以内に当社と建築請負契約を結んでいただくことを停止条件として販売します。3ヶ月以内に請負契約が成立しなかった場合は、土地の売買契約は白紙で解除し、申込金・預かり金・その他お預かりした金銭はすみやかにご返却します。
※図面等の掲載情報は、現況と異なる場合がありますがその場合は現況を優先して販売いたします。
※当ホームページではできるだけ最新情報の掲載・更新に努めておりますが、万一ご売却済みの場合はご了承ください。
遠州鉄道株式会社 遠鉄の不動産 浜松店
053-471-0202































価格3190万円
(税込)
| 間取り: | 3LDK |
|---|---|
| 所在地: | 静岡県浜松市中央区高塚町4827-9 |
| 交通: | 東海道本線(東海) 高塚駅 車2分(0.8km) 【バス】高塚西 バス停徒歩2分 |
| 築年月: | 2024年9月 |
\\長期優良住宅・省エネ性能ラベル取得・耐震等級3取得//
■主寝室には約1.8帖のウォークインクローゼットとカウンタースぺース付!
■ガス衣類乾燥機付!ガスの力でお洗濯ものが素早くふっくら乾きます
■ホール収納や階段下収納など便利な収納が各所にあります
■全居室南向き&2面採光で快適な住まい
■2階ホールにはセカンド洗面を設置。混みあう洗面も快適にご利用いただけます。
| 建物名 | 浜松市中央区高塚町 |
|---|---|
| 物件種別 | 戸建 |
| 物件所在地 | 静岡県浜松市中央区高塚町4827-9 |
| 交通機関 | 東海道本線(東海) 高塚駅 車2分(0.8km) 【バス】高塚西 バス停徒歩2分 |
| 通学区(小学校) | 浜松市立可美小学校 1800m |
| 通学区(中学校) | 浜松市立可美中学校 1321m |
| 土地面積 | 129.61㎡(実測) |
| 土地面積(坪) | 約39.2坪 |
| 面積(専有・建物) | 92.74㎡ |
| 面積(坪) | 約28.05坪 |
| 建ぺい率 | 60% |
| 容積率 | 200% |
| 間取り | 3LDK |
| 間取り詳細 | 1階:LDK(15.7畳) 2階:洋室(5.4畳) 洋室(5.4畳) 洋室(8.1畳) |
| 建物構造 | 木造 |
| 建物構造備考 | |
| 特徴等 | 免震・耐震構造:耐震構造 |
| 都市計画 | 市街化区域 |
| 用途地域 | 工業地域 |
| 地目 | 宅地 |
| 窓の向き | 南 |
| 建物階数 | 地上2階建 |
| 土地現況 | |
| 法令上の制限 | 景観法 都市再生特別措置法 |
| 私道負担面積 | |
| セットバック | |
| 接道状況 | 北東4m私道 |
| 駐車場 | 付 |
| 駐輪場 | |
| バイク置き場 | |
| 地下・駐車場面積 | |
| 総戸数 | |
| 総区画数 |
遠州鉄道株式会社 遠鉄の不動産 浜松店
053-471-0202
| 現況 | 空き |
|---|---|
| 取引態様 | 売主 |
| 引渡時期 | 相談 |
| 借地権 | |
| 敷地の権利形態 | 所有権 |
| 地勢 | 平坦 |
| 近隣施設 | スーパー:バロー 高塚店 140m ショッピング施設:イオンモール浜松志都呂 3500m コンビ二:ローソン 浜松篠原店 340m スーパー:遠鉄ストア篠原店 868m |
| 部屋外設備 | バルコニー |
| 入居条件 | |
| 施設費用 | |
| その他費用 | |
| 建築確認番号 | 第 KS124-0410-53283 号 |
| 開発許可番号 | |
| 国土法による許可 又は事前届出 | |
| 自社管理番号 | S-63-0000006014 |
| 物件管理コード | 2117658408900000031352 |
| 免許番号 | 静岡県知事(16)第1059号 |
| 備考 | |
| 情報更新日 | 2025年11月26日 |
| 次回更新予定日 | 2025年12月26日 |
※ページ内に記載の距離はおおよその目安です。
※(税込)表示がある価格には法定の消費税を含んでいます。
※(公社)静岡県宅地建物取引業協会 東海不動産公正取引協議会加盟
※建築条件付土地の場合は、すべて土地売買契約締結後3ヶ月以内に当社と建築請負契約を結んでいただくことを停止条件として販売します。3ヶ月以内に請負契約が成立しなかった場合は、土地の売買契約は白紙で解除し、申込金・預かり金・その他お預かりした金銭はすみやかにご返却します。
※図面等の掲載情報は、現況と異なる場合がありますがその場合は現況を優先して販売いたします。
※当ホームページではできるだけ最新情報の掲載・更新に努めておりますが、万一ご売却済みの場合はご了承ください。
遠州鉄道株式会社 遠鉄の不動産 浜松店
053-471-0202