【東部小学校まで徒歩9分/JR御厨駅車約3分】マム磐田南店まで車約3分等周辺に商業施設も多くお買い物にも便利です!
・ゆとりのある3台分の駐車スペースを完備。車を複数台所有するご家庭にも対応しています。
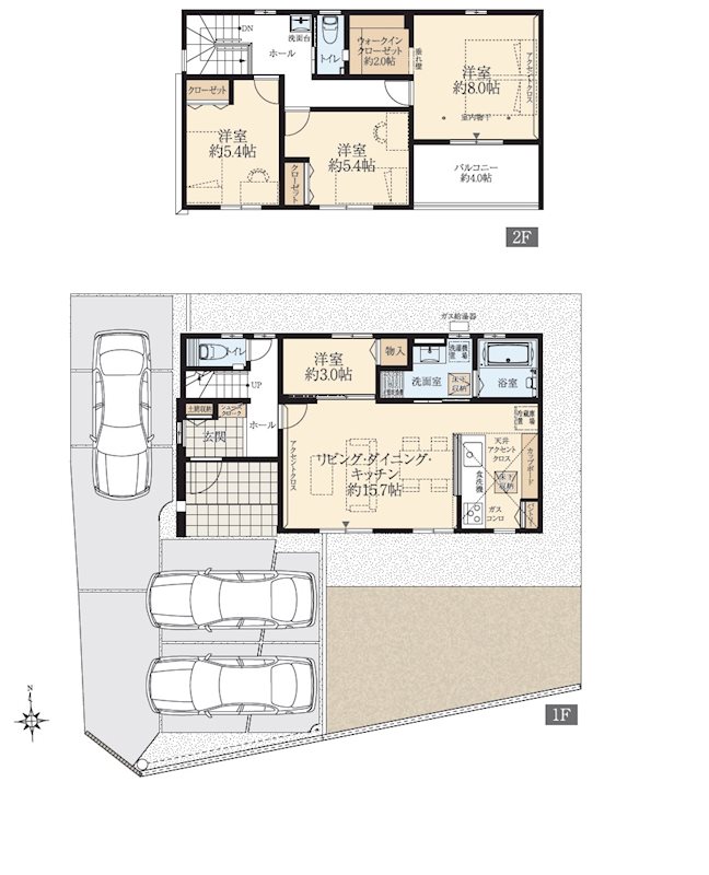
・洗面室や浴室、トイレなど水回りが近くに配置され、家事動線がスムーズ。日々の生活が快適です。
・ガス衣類乾燥機付きだから、梅雨の時期もお洗濯が安心♪
・2階は全居室南向きの明るい空間。
| 建物名 | 磐田市西貝塚 | 物件種別 | 戸建 | ||
|---|---|---|---|---|---|
| 物件所在地 | 静岡県磐田市西貝塚1787-4 | 交通機関 | 東海道本線(東海) 御厨(静岡)駅 車3分(1.5km) 東海道本線(東海) 御厨(静岡)駅 徒歩19分 |
||
| 通学区(小学校) | 磐田市立東部小学校 2598m | 通学区(中学校) | 磐田市立神明中学校 2531m | ||
| 土地面積 | 175.52㎡(実測) | 面積(専有・建物) | 97.31㎡ | 建ぺい率 | 60% |
| 土地面積(坪) | 約53.09坪 | 面積(坪) | 約29.43坪 | 容積率 | 200% |
| 間取り | 4LDK | 間取り詳細 | 1階:LDK(15.7畳) 洋室(3畳) 2階:洋室(8畳) 洋室(5.4畳) 洋室(5.4畳) | ||
| 建物構造 | 木造 | 建物構造備考 | |||
| 特徴等 | 免震・耐震構造:耐震構造 |
||||
| 都市計画 | 市街化区域 | 用途地域 | 第一種住居地域 | 地目 | 宅地 現況地目:宅地 |
| 窓の向き | 南 | 建物階数 | 地上2階建 | 土地現況 | |
| 法令上の制限 | 景観法 都市再生特別措置法 | ||||
| 私道負担面積 | 無し | セットバック | 接道状況 | 西5m公道 | |
| 駐車場 | 付 | 駐輪場 | |||
| バイク置き場 | |||||
| 地下・駐車場面積 | 総戸数 | 総区画数 | |||
| 現況 | 空き | 取引態様 | 売主 | 引渡時期 | 相談 |
| 借地権 | 敷地の権利形態 | 所有権 | 地勢 | 平坦 | |
| 近隣施設 | ドラッグストア:杏林堂薬局 西貝塚店 560m スーパー:フードマーケットMom 磐田南店 1500m ホームセンター:ジャンボエンチョー 磐田店 1400m 幼稚園:西貝保育園 466m 銀行:JA遠州中央 西貝支店 640m 幼稚園:磐田市立東部幼稚園 759m 公園:安久路公園 1114m |
||||
| 部屋外設備 | |||||
| 入居条件 | 施設費用 | その他費用 | |||
| 建築確認番号 | 第2024確認建築静建住ま02110号 | 開発許可番号 | 国土法による許可 又は事前届出 | ||
| 自社管理番号 | S-62-0000002893 | 物件管理コード | 2117658408900000031346 | 免許番号 | 静岡県知事(16)第1059号 |
| 備考 | |||||
| 情報更新日 | 2026年1月30日 | 次回更新予定日 | 2026年3月1日 | ||
※ページ内に記載の距離はおおよその目安です。
※(税込)表示がある価格には法定の消費税を含んでいます。
※(公社)静岡県宅地建物取引業協会 東海不動産公正取引協議会加盟
※建築条件付土地の場合は、すべて土地売買契約締結後3ヶ月以内に当社と建築請負契約を結んでいただくことを停止条件として販売します。3ヶ月以内に請負契約が成立しなかった場合は、土地の売買契約は白紙で解除し、申込金・預かり金・その他お預かりした金銭はすみやかにご返却します。
※図面等の掲載情報は、現況と異なる場合がありますがその場合は現況を優先して販売いたします。
※当ホームページではできるだけ最新情報の掲載・更新に努めておりますが、万一ご売却済みの場合はご了承ください。
遠州鉄道株式会社 遠鉄の不動産 磐田店
0538-31-7070






























価格3350万円
(税込)
| 間取り: | 4LDK |
|---|---|
| 所在地: | 静岡県磐田市西貝塚1787-4 |
| 交通: | 東海道本線(東海) 御厨(静岡)駅 車3分(1.5km) 東海道本線(東海) 御厨(静岡)駅 徒歩19分 |
| 築年月: | 2024年11月 |
【東部小学校まで徒歩9分/JR御厨駅車約3分】マム磐田南店まで車約3分等周辺に商業施設も多くお買い物にも便利です!
・ゆとりのある3台分の駐車スペースを完備。車を複数台所有するご家庭にも対応しています。
・洗面室や浴室、トイレなど水回りが近くに配置され、家事動線がスムーズ。日々の生活が快適です。
・ガス衣類乾燥機付きだから、梅雨の時期もお洗濯が安心♪
・2階は全居室南向きの明るい空間。
| 建物名 | 磐田市西貝塚 |
|---|---|
| 物件種別 | 戸建 |
| 物件所在地 | 静岡県磐田市西貝塚1787-4 |
| 交通機関 | 東海道本線(東海) 御厨(静岡)駅 車3分(1.5km) 東海道本線(東海) 御厨(静岡)駅 徒歩19分 |
| 通学区(小学校) | 磐田市立東部小学校 2598m |
| 通学区(中学校) | 磐田市立神明中学校 2531m |
| 土地面積 | 175.52㎡(実測) |
| 土地面積(坪) | 約53.09坪 |
| 面積(専有・建物) | 97.31㎡ |
| 面積(坪) | 約29.43坪 |
| 建ぺい率 | 60% |
| 容積率 | 200% |
| 間取り | 4LDK |
| 間取り詳細 | 1階:LDK(15.7畳) 洋室(3畳) 2階:洋室(8畳) 洋室(5.4畳) 洋室(5.4畳) |
| 建物構造 | 木造 |
| 建物構造備考 | |
| 特徴等 | 免震・耐震構造:耐震構造 |
| 都市計画 | 市街化区域 |
| 用途地域 | 第一種住居地域 |
| 地目 | 宅地 現況地目:宅地 |
| 窓の向き | 南 |
| 建物階数 | 地上2階建 |
| 土地現況 | |
| 法令上の制限 | 景観法 都市再生特別措置法 |
| 私道負担面積 | 無し |
| セットバック | |
| 接道状況 | 西5m公道 |
| 駐車場 | 付 |
| 駐輪場 | |
| バイク置き場 | |
| 地下・駐車場面積 | |
| 総戸数 | |
| 総区画数 |
遠州鉄道株式会社 遠鉄の不動産 磐田店
0538-31-7070
| 現況 | 空き |
|---|---|
| 取引態様 | 売主 |
| 引渡時期 | 相談 |
| 借地権 | |
| 敷地の権利形態 | 所有権 |
| 地勢 | 平坦 |
| 近隣施設 | ドラッグストア:杏林堂薬局 西貝塚店 560m スーパー:フードマーケットMom 磐田南店 1500m ホームセンター:ジャンボエンチョー 磐田店 1400m 幼稚園:西貝保育園 466m 銀行:JA遠州中央 西貝支店 640m 幼稚園:磐田市立東部幼稚園 759m 公園:安久路公園 1114m |
| 部屋外設備 | |
| 入居条件 | |
| 施設費用 | |
| その他費用 | |
| 建築確認番号 | 第2024確認建築静建住ま02110号 |
| 開発許可番号 | |
| 国土法による許可 又は事前届出 | |
| 自社管理番号 | S-62-0000002893 |
| 物件管理コード | 2117658408900000031346 |
| 免許番号 | 静岡県知事(16)第1059号 |
| 備考 | |
| 情報更新日 | 2026年1月30日 |
| 次回更新予定日 | 2026年3月1日 |
※ページ内に記載の距離はおおよその目安です。
※(税込)表示がある価格には法定の消費税を含んでいます。
※(公社)静岡県宅地建物取引業協会 東海不動産公正取引協議会加盟
※建築条件付土地の場合は、すべて土地売買契約締結後3ヶ月以内に当社と建築請負契約を結んでいただくことを停止条件として販売します。3ヶ月以内に請負契約が成立しなかった場合は、土地の売買契約は白紙で解除し、申込金・預かり金・その他お預かりした金銭はすみやかにご返却します。
※図面等の掲載情報は、現況と異なる場合がありますがその場合は現況を優先して販売いたします。
※当ホームページではできるだけ最新情報の掲載・更新に努めておりますが、万一ご売却済みの場合はご了承ください。
遠州鉄道株式会社 遠鉄の不動産 磐田店
0538-31-7070