【浜名区根堅に広々敷地の大規模既存集落の登場です♪】
・境界確定測量後のお引渡しです♪
・赤佐地区大規模既存集落内の青地農地です!
・農地25㎡分は切り離してのお引渡しです♪
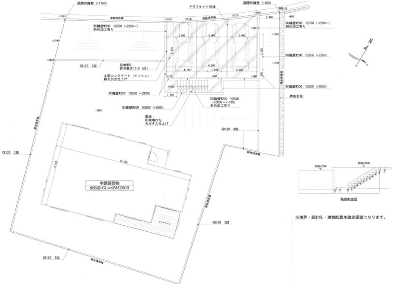
・高低差を利用した外構・駐車場プランをご参照下さい♪
| 物件所在地 | 静岡県浜松市浜名区根堅2492-8 | 物件種別 | 土地 | ||
|---|---|---|---|---|---|
| 交通機関 | 遠州鉄道 西鹿島駅 徒歩18分 【バス】林業技術センター バス停徒歩6分 |
総区画数 | 1区画 | ||
| 通学区(小学校) | 浜松市立赤佐小学校 1576m | 通学区(中学校) | |||
| 土地面積 | 525㎡(公簿) | 建ぺい率 | 60% | 都市計画 | 市街化調整区域 |
| 土地面積(坪) | 約158.81坪 | 容積率 | 200% | 用途地域 | 無指定 |
| 土地現況 | 更地 | 建築条件の有無 | 無し | 地目 | 畑 現況地目:畑 |
| 特徴等 | 最適用途:住宅用地 |
||||
| 法令上の制限 | 景観法 | ||||
| 私道負担面積 | 無し | セットバック | 接道状況 | 北6.8m公道 | |
| 現況 | 取引態様 | 一般媒介 | 引渡時期 | 相談 | |
| 借地権 | 敷地の権利形態 | 所有権 | 地勢 | 高台 | |
| 近隣施設 | コンビ二:セブンイレブン 浜北根堅店 748m コンビ二:ローソン 浜北根堅店 662m 銀行:浜松いわた信用金庫於呂支店 1027m ドラッグストア:杏林堂ドラッグストア 於呂店 1229m 総合病院:国立病院機構天竜病院(独立行政法人) 1279m 幼稚園:浜松市立赤佐幼稚園 1211m ドラッグストア:杏林堂薬局 西鹿島駅前店 1768m |
||||
| 入居条件 | 施設費用 | その他費用 | |||
| 建築確認番号 | 開発許可番号 | 国土法による許可 又は事前届出 | 不要 | ||
| 自社管理番号 | S-72-0000002299 | 物件管理コード | 2117658408900000030258 | 免許番号 | 静岡県知事(16)第1059号 |
| 備考 | 【浜名区根堅に広々敷地の大規模既存集落の登場です♪】 ・境界確定測量後のお引渡しです♪ ・赤佐地区大規模既存集落内の青地農地です! ・農地25㎡分は切り離してのお引渡しです♪ ・高低差を利用した外構・駐車場プランをご参照下さい♪ |
||||
| 情報更新日 | 2026年1月26日 | 次回更新予定日 | 2026年2月25日 | ||
※ページ内に記載の距離はおおよその目安です。
※(税込)表示がある価格には法定の消費税を含んでいます。
※(公社)静岡県宅地建物取引業協会 東海不動産公正取引協議会加盟
※建築条件付土地の場合は、すべて土地売買契約締結後3ヶ月以内に当社と建築請負契約を結んでいただくことを停止条件として販売します。3ヶ月以内に請負契約が成立しなかった場合は、土地の売買契約は白紙で解除し、申込金・預かり金・その他お預かりした金銭はすみやかにご返却します。
※図面等の掲載情報は、現況と異なる場合がありますがその場合は現況を優先して販売いたします。
※当ホームページではできるだけ最新情報の掲載・更新に努めておりますが、万一ご売却済みの場合はご了承ください。
遠州鉄道株式会社 遠鉄の不動産 浜北店
053-581-1124






















価格198万円
| 土地面積: | 525㎡(公簿)(約158.81坪) |
|---|---|
| 所在地: | 静岡県浜松市浜名区根堅2492-8 |
| 交通: | 遠州鉄道 西鹿島駅 徒歩18分 【バス】林業技術センター バス停徒歩6分 |
【浜名区根堅に広々敷地の大規模既存集落の登場です♪】
・境界確定測量後のお引渡しです♪
・赤佐地区大規模既存集落内の青地農地です!
・農地25㎡分は切り離してのお引渡しです♪
・高低差を利用した外構・駐車場プランをご参照下さい♪
| 物件所在地 | 静岡県浜松市浜名区根堅2492-8 |
|---|---|
| 物件種別 | 土地 |
| 交通機関 | 遠州鉄道 西鹿島駅 徒歩18分 【バス】林業技術センター バス停徒歩6分 |
| 総区画数 | 1区画 |
| 通学区(小学校) | 浜松市立赤佐小学校 1576m |
| 通学区(中学校) | |
| 土地面積 | 525㎡(公簿) |
| 土地面積(坪) | 約158.81坪 |
| 建ぺい率 | 60% |
| 容積率 | 200% |
| 特徴等 | 最適用途:住宅用地 |
| 都市計画 | 市街化調整区域 |
| 用途地域 | 無指定 |
| 地目 | 畑 現況地目:畑 |
| 土地現況 | 更地 |
| 建築条件の有無 | 無し |
| 法令上の制限 | 景観法 |
遠州鉄道株式会社 遠鉄の不動産 浜北店
053-581-1124
| 私道負担面積 | 無し |
|---|---|
| セットバック | |
| 接道状況 | 北6.8m公道 |
| 現況 | |
| 取引態様 | 一般媒介 |
| 引渡時期 | 相談 |
| 借地権 | |
| 敷地の権利形態 | 所有権 |
| 地勢 | 高台 |
| 近隣施設 | コンビ二:セブンイレブン 浜北根堅店 748m コンビ二:ローソン 浜北根堅店 662m 銀行:浜松いわた信用金庫於呂支店 1027m ドラッグストア:杏林堂ドラッグストア 於呂店 1229m 総合病院:国立病院機構天竜病院(独立行政法人) 1279m 幼稚園:浜松市立赤佐幼稚園 1211m ドラッグストア:杏林堂薬局 西鹿島駅前店 1768m |
| 入居条件 | |
| 施設費用 | |
| その他費用 | |
| 建築確認番号 | |
| 開発許可番号 | |
| 国土法による許可 又は事前届出 | 不要 |
| 自社管理番号 | S-72-0000002299 |
| 物件管理コード | 2117658408900000030258 |
| 免許番号 | 静岡県知事(16)第1059号 |
| 備考 | 【浜名区根堅に広々敷地の大規模既存集落の登場です♪】 ・境界確定測量後のお引渡しです♪ ・赤佐地区大規模既存集落内の青地農地です! ・農地25㎡分は切り離してのお引渡しです♪ ・高低差を利用した外構・駐車場プランをご参照下さい♪ |
| 情報更新日 | 2026年1月26日 |
| 次回更新予定日 | 2026年2月25日 |
※ページ内に記載の距離はおおよその目安です。
※(税込)表示がある価格には法定の消費税を含んでいます。
※(公社)静岡県宅地建物取引業協会 東海不動産公正取引協議会加盟
※建築条件付土地の場合は、すべて土地売買契約締結後3ヶ月以内に当社と建築請負契約を結んでいただくことを停止条件として販売します。3ヶ月以内に請負契約が成立しなかった場合は、土地の売買契約は白紙で解除し、申込金・預かり金・その他お預かりした金銭はすみやかにご返却します。
※図面等の掲載情報は、現況と異なる場合がありますがその場合は現況を優先して販売いたします。
※当ホームページではできるだけ最新情報の掲載・更新に努めておりますが、万一ご売却済みの場合はご了承ください。
遠州鉄道株式会社 遠鉄の不動産 浜北店
053-581-1124