浜松市中央区東三方町[マンション]
- 間取り(面積)
- 1K
- (25.92㎡)
- 賃料(管理費等)
- 4.3万円
- (4000円)
- 交通:
- 【バス】53/56〔浜松駅-啓陽高校入口〕 半田山北 バス停徒歩7分
【バス】100(浜北駅-聖隷三方原病院) 染地台一丁目 バス停徒歩11分
【バス】50 日体高前 バス停徒歩11分
- 敷金:
- - /
- 礼金:
- - /
- 保証金:
- 70000円
- 築年月:
- 2000年2月
遠州鉄道株式会社 遠鉄の不動産 高台店
- 物件名
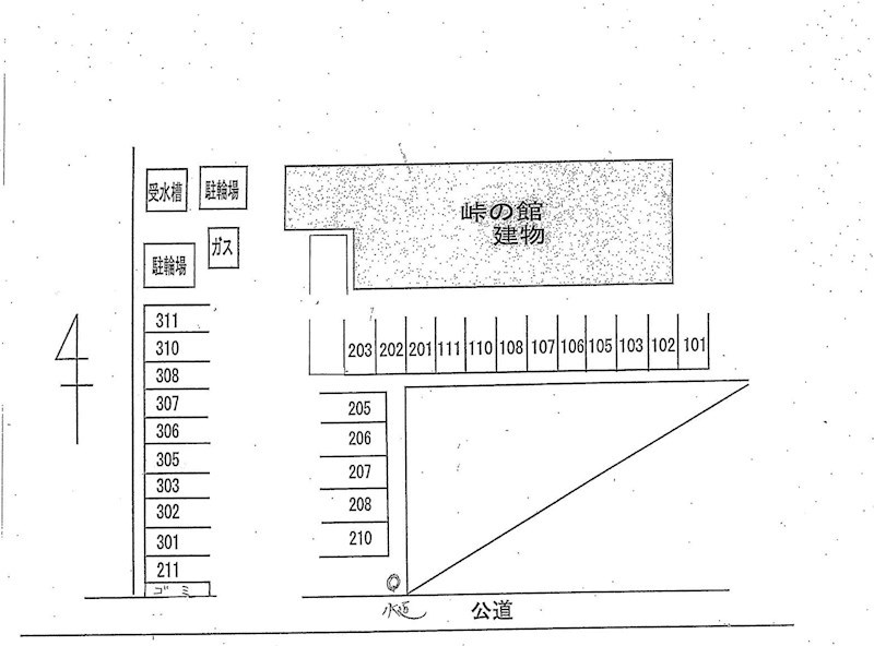
- 峠の館
- 部屋番号
- 110号室
- 所在地
静岡県浜松市中央区東三方町311
- 交通
- 【バス】53/56〔浜松駅-啓陽高校入口〕 半田山北 バス停徒歩7分
【バス】100(浜北駅-聖隷三方原病院) 染地台一丁目 バス停徒歩11分
【バス】50 日体高前 バス停徒歩11分 - 物件種別
- マンション
- 建物構造
- 鉄筋コンクリート
- 築年月
- 2000年2月
- 部屋向き
- 南
- 階数
- 3
- 所在階
- 1
- 間取り
- 1K
- 専有面積
- 25.92㎡
- 間取り詳細
- 洋室(9畳) K(3畳)
- 駐車場
- 駐車場:付(無料) 駐車可能台数(1台) 駐輪場:有
- 設備
- 敷地内ゴミ置き場,宅配BOX,ガスコンロ設置可,バス・トイレ別,バス有,脱衣所,シャワー,トイレ有,温水洗浄便座,洗面台,洗面所独立,洗面化粧台,エアコン,BS,CATV,光ファイバー,ネット使用料不要,TVインターホン,ガス給湯,室内洗濯機置場,クローゼット,シューズボックス,ガス(プロパン),下水(公共下水),水道(公営),電気
- 部屋外設備
- セールスポイント
- ネット無料・宅配BOX・駐輪場・敷地内ゴミ捨て場完備です☆
- 特徴
- 南面バルコニー,電子ロック,寝室8畳以上,保証人(不要),カード決済可(入居時費用)
- 周辺施設
- コンビニ:セブンイレブン 浜松東三方町店 540m
ドラッグストア:クリエイトSD(エス・ディー) 浜松半田山店 765m
郵便局:浜北内野簡易郵便局 1392m
スーパー:マックスバリュ浜松三方原店 1505m
ホームセンター:ジャンボエンチョーきらりタウン浜北店 1979m
ショッピング施設:MEGAドン・キホーテ浜松三方原店 351m
コンビニ:ファミリーマート 浜松東三方町店 366m
公園:半田公園 609m
銀行:遠州信用金庫積志支店 682m
大学・短大:国立浜松医科大学 1626m - その他月次費用
- 定額水道料:3,850円 Fサポートplus:2,420円
- その他一時金
- 損害保険
- 要加入
- 保証会社
- 必須 (オリコフォレントインシュア) 初回保証料35,000円 月額手数料請求額の1.5%
- 現況
- 退去予定
- 入居時期
- 予定 2026年3月中旬
- 契約種別
- 普通借家契約
- 契約期間(定期借家の場合)
- 入居条件
- ペット(不可),単身(限定)
- 備考
- お問合わせ店舗名
- 遠州鉄道株式会社 遠鉄の不動産 高台店
- お問合わせ店舗住所
- 静岡県浜松市中央区葵東2丁目5-8
- お問合わせ店舗電話番号
- 053-454-2271
- お問合わせ番号/
自社管理番号 - 1117658408900000200560/
R-65-0000027039 - 免許番号
- 静岡県知事(16)第1059号
- 取引態様
- 仲介先物
- 情報更新日
- 2026年1月31日
- 次回更新予定日
- 2026年3月2日
※ページ内に記載の距離はおおよその目安です。
※(公社)静岡県宅地建物取引業協会 東海不動産公正取引協議会加盟
※図面等の掲載情報は、現況と異なる場合がありますがその場合は現況を優先いたします。
※当ホームページではできるだけ最新情報の掲載・更新に努めておりますが、万一ご成約済みの場合はご了承ください。



