浜松市中央区原島町[アパート]
- 間取り(面積)
- 1LDK
- (40㎡)
- 賃料(管理費等)
- 6.0万円
- (5500円)
- 交通:
- 【バス】75 原島変電所 バス停徒歩1分
【バス】75 原島 バス停徒歩5分
【バス】75 浜松プラザ バス停徒歩5分
- 敷金:
- - /
- 礼金:
- 50000円 /
- 保証金:
- -
- 築年月:
- 2008年2月
遠州鉄道株式会社 遠鉄の不動産 高台店
- 物件名
- ヴィラ・ラフィーネ
- 部屋番号
- 102号室
- 所在地
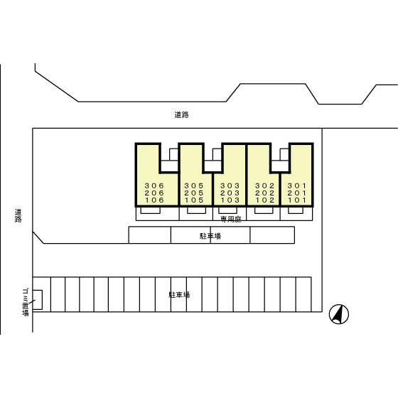
静岡県浜松市中央区原島町65-1
- 交通
- 【バス】75 原島変電所 バス停徒歩1分
【バス】75 原島 バス停徒歩5分
【バス】75 浜松プラザ バス停徒歩5分 - 物件種別
- アパート
- 建物構造
- 軽量鉄骨
- 築年月
- 2008年2月
- 部屋向き
- 南
- 階数
- 3
- 所在階
- 1
- 間取り
- 1LDK
- 専有面積
- 40㎡
- 間取り詳細
- 洋室(6畳) LDK(10畳)
- 駐車場
- 駐車場:付(無料) 舗装 屋根:無 シャッター:無 駐車可能台数(1台) 駐輪場:有 バイク置き場:有
- 設備
- 敷地内ゴミ置き場,バス・トイレ別,バス有,追い焚き風呂,脱衣所,シャワー,トイレ有,温水洗浄便座,洗面所独立,洗面化粧台,シャワー付洗面台,エアコン,BS,CATV,TVインターホン,ガス給湯,室内洗濯機置場,クローゼット,シューズボックス,床下収納,ガス(プロパン),下水(公共下水),水道(公営),電気
- 部屋外設備
- バルコニー
- セールスポイント
- インターネット無料です!(工事後使用可) インターネット(D.U-NET)ご利用いただけます!エアコン1台(LDK)、ガスコンロ・LED照明付!!1LDK物件です。
- 特徴
- 南面バルコニー,カードキー,陽当たり良好,保証人(不要),カード決済可(入居時費用)
- 周辺施設
- コンビニ:セブンイレブン 浜松篠ケ瀬南店 576m
スーパー:業務スーパー 浜松原島店 301m
スーパー:ロピア 浜松プラザフレスポ店 504m
スーパー:セリア 浜松プラザフレスポ店 504m
ホームセンター:コーナンPRO浜松和田店 814m
スーパー:遠鉄ストア天王店 1350m
スーパー:コストコホールセール 浜松倉庫店 641m
警察署・交番:浜松東警察署和田交番 1224m
郵便局:浜松橋羽郵便局 1556m - その他月次費用
- 町会費:500円
- その他一時金
- 入町費:1,000円 カードキー発行料:16,500円 ルームクリーニング料金:60,500円
- 損害保険
- 要加入
- 保証会社
- 必須 回保証料35000円、月額保証料賃料等総額の1%+800円/月(その他商品あり)
- 現況
- 空
- 入居時期
- 即時
- 契約種別
- 普通借家契約
- 契約期間(定期借家の場合)
- 入居条件
- 備考
- お問合わせ店舗名
- 遠州鉄道株式会社 遠鉄の不動産 高台店
- お問合わせ店舗住所
- 静岡県浜松市中央区葵東2丁目5-8
- お問合わせ店舗電話番号
- 053-454-2271
- お問合わせ番号/
自社管理番号 - 100000016584665/
R-65-0000012077 - 免許番号
- 静岡県知事(16)第1059号
- 取引態様
- 仲介先物
- 情報更新日
- 2025年12月6日
- 次回更新予定日
- 2026年1月5日
※ページ内に記載の距離はおおよその目安です。
※(公社)静岡県宅地建物取引業協会 東海不動産公正取引協議会加盟
※図面等の掲載情報は、現況と異なる場合がありますがその場合は現況を優先いたします。
※当ホームページではできるだけ最新情報の掲載・更新に努めておりますが、万一ご成約済みの場合はご了承ください。



