浜松市中央区西山町[アパート]
- 間取り(面積)
- 2DK
- (40.05㎡)
- 賃料(管理費等)
- 4.6万円
- (3500円)
- 交通:
- 【バス】30/31 西山団地(静岡県) バス停徒歩1分
【バス】36 西山会館入口 バス停徒歩5分
【バス】8-33 狸坂 バス停徒歩5分
- 敷金:
- - /
- 礼金:
- - /
- 保証金:
- -
- 築年月:
- 1999年11月
遠州鉄道株式会社 遠鉄の不動産 浜松店
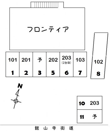
- 物件名
- フロンティアⅠ
- 部屋番号
- 202号室
- 所在地
静岡県浜松市中央区西山町564
- 交通
- 【バス】30/31 西山団地(静岡県) バス停徒歩1分
【バス】36 西山会館入口 バス停徒歩5分
【バス】8-33 狸坂 バス停徒歩5分 - 物件種別
- アパート
- 建物構造
- 軽量鉄骨
- 築年月
- 1999年11月
- 部屋向き
- 南
- 階数
- 2
- 所在階
- 2
- 間取り
- 2DK
- 専有面積
- 40.05㎡
- 間取り詳細
- 洋室(5畳) 洋室(6畳) DK(5畳)
- 駐車場
- 駐車場:付(無料) 駐車可能台数(1台) 駐輪場:有
- 設備
- バス・トイレ別,バス有,脱衣所,シャワー,トイレ有,洗面台,洗面所独立,洗面化粧台,シャワー付洗面台,エアコン,TVインターホン,室内洗濯機置場,クローゼット,シューズボックス,ガス(プロパン),水道(公営)
- 部屋外設備
- セールスポイント
- 西山町の2DKアパート 舘山寺街道沿いの物件です。コンビニ・バス停すぐ近くで便利な立地☆
- 特徴
- 南面バルコニー,最上階,上階無し,2F以上,南面2室,カード決済可(入居時費用)
- 周辺施設
- コンビニ:ミニストップ 浜松西山町店 86m
コンビニ:セブンイレブン 浜松西山店 493m
銀行:浜松いわた信用金庫西山支店 621m
内科:大坂内科医院 1002m
銀行:静岡銀行富塚支店 1626m
スーパー:ユーコープ富塚店 2061m
郵便局:浜松西山郵便局 934m
スーパー:フレッシュ・スヤマ 1090m
ドラッグストア:杏林堂薬局 和合店 2324m
公園:伊左地緑地 2531m - その他月次費用
- NPサポート:1,320円 自治会費:475円
- その他一時金
- デジタルロック鍵管理料:6,600円 退去時清掃費:55,000円
- 損害保険
- 要加入
- 保証会社
- 必須 加入要(賃貸保証会社:指定保証会社、要確認)
- 現況
- 空
- 入居時期
- 予定 2025年12月中旬
- 契約種別
- 普通借家契約
- 契約期間(定期借家の場合)
- 入居条件
- 備考
- お問合わせ店舗名
- 遠州鉄道株式会社 遠鉄の不動産 浜松店
- お問合わせ店舗住所
- 静岡県浜松市中央区八幡町15-5
- お問合わせ店舗電話番号
- 053-454-2271
- お問合わせ番号/
自社管理番号 - 100000014916805/
R-63-0000010652 - 免許番号
- 静岡県知事(16)第1059号
- 取引態様
- 仲介先物
- 情報更新日
- 2025年11月30日
- 次回更新予定日
- 2025年12月30日
※ページ内に記載の距離はおおよその目安です。
※(公社)静岡県宅地建物取引業協会 東海不動産公正取引協議会加盟
※図面等の掲載情報は、現況と異なる場合がありますがその場合は現況を優先いたします。
※当ホームページではできるだけ最新情報の掲載・更新に努めておりますが、万一ご成約済みの場合はご了承ください。



